Artic Apex kollekció

Az Artic Apex stílusos gerendaház speciális formatervezés eredménye, amely ötvözi a faházak kialakítása során 40 év alatt összegyűjtött leghasznosabb tapasztalatainkat. Ebben a házban az élet egy igazi tündérmese, köszönhetően a rengeteg természetes fény okozta világos kialakításnak, valamint a funkcionalitás előtérbe helyezésének. Szeretnénk, hogy minden a megrendelőnk igényei szerint alakuljon, ezért választási lehetőséget biztosítunk a különböző padlómegoldások között.

 

Artihouse 01 v1 Camera2 Artihouse 01 2nd floor v1 Artihouse 01 v2 Camera02 Artihouse 01 v2 exterior Camera002 Artihouse 01 v3 Camera05 Artihouse 01 v4 Camera2 Artihouse 01 v4 Camera03 Bathroom

  

Alaprajz opció: 174 nm

174

 

Alaprajz opció: 197 nm

197

 

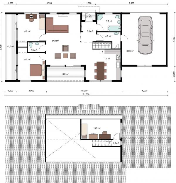
Alaprajz opció: 205 nm

205

 

Alaprajz opció: 216 nm

216

 

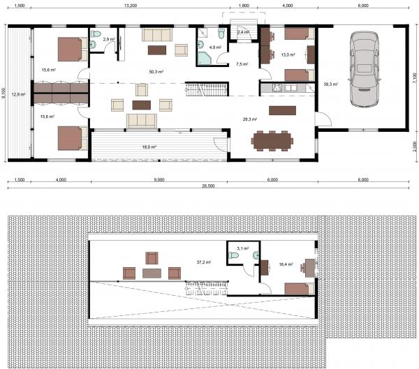
Alaprajz opció: 246 nm

246

 

Alaprajz opció: 260 nm

260

 

Alaprajz opció: 265 nm

265